固体焼却設備 Solid waste incineration plant
プロセス概要
多種多様な廃棄物の処理
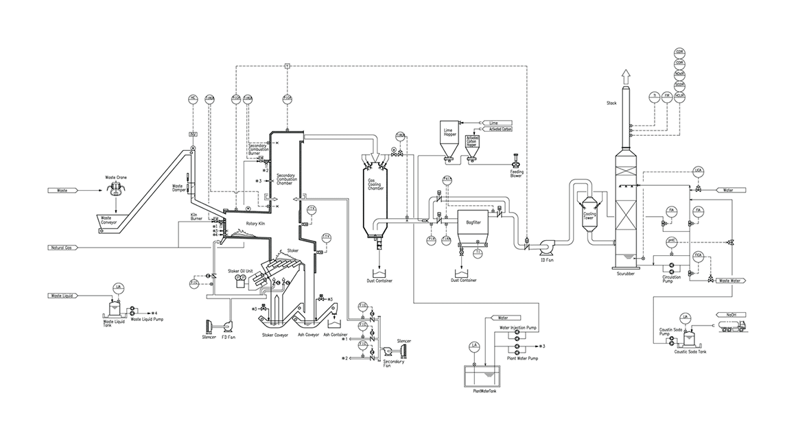
キルンストーカ炉は、ロータリーキルン炉とストーカ炉の長所を組合せて、汚泥のような発熱量の低い廃棄物から廃プラスチック類のような高発熱量の廃棄物まで、幅広い廃棄物に適応した焼却炉です。ロータリーキルン炉部分では輻射熱による乾燥・ガス化・燃焼が行われ、ストーカ炉部分ではロータリーキルン部で燃焼できなかった未燃分を完全に燃焼させます。キルンストーカ炉は、燃焼室の保有容量が大きく、緩慢な燃焼であることからスムーズな燃焼となり、容易な運転制御が可能です。
熱回収は、排ガス冷却設備を廃熱ボイラや空気予熱器に変更することで可能となります。また、焼却炉排ガスの余熱を利用した汚泥乾燥機を設置することが可能で、乾燥用熱源の燃料の軽減を図ることができます。排ガスの有害ガス除去には、規制値に対応した方式を選択することできます。

特徴
- 幅広い廃棄物に対応
- 容易な運転制御
- 余熱の有効利用(蒸気、発電、予熱空気、乾燥熱源など)
実施例
| 処理対象物 | 廃棄家電品の破砕物 | ||
|---|---|---|---|
| 低位発熱量 | 14,000kJ/kg | ||
| 処理量 | 20ton/日 | ||
| 運転時間 | 24時間連続 | ||
| 燃焼方式 | キルンストーカ炉 | ||
| 排ガス冷却方式 | 水噴霧式 | ||
| 有害ガス除去方式 | 消石灰噴霧及びバグフィルタ、 アルカリスクラバ |
||
| 排ガス量 | 25,000m3/h(NTP) | ||
| 排ガス規制 | ダスト | 0.08mg/m3(NTP) | |
| NOx | 500mg/m3(NTP) | ||
| SOx | 300mg/m3(NTP) | ||
| HCl | 70mg/m3(NTP) | ||
| DXNs | 0.1ng-TEQ/m3(NTP) | ||
| 設置面積 | 50m×25m | ||








